Įsiminti
Butas pardavimui, Panevėžys, Tulpės, Tulpių g. id:1031041 3 kmb.
74 900 €
1 152 €/m²
REKLAMA
Įmoka
282 €/mėn
Paskola 63 665 €
Palūkanos 3.40%
Trukmė 30 metų
Įsiminė
0
Parodymai
Šiandien: 23
Viso: 1049
Peržiūros
Šiandien: 10
Viso: 24
Objekto informacija
Papildoma įranga
REKLAMA
REKLAMA
Aprašymas
PARDUODAMAS 3 K. BUTAS SU DVIEM BALKONAIS RENOVUOTAME NAME, TULPIŲ G. 1
BENDRI PRIVALUMAI:
- RENOVACIJOS MOKESTIS SUMOKĖTAS;
- ATLIKTI IR ĮREGISTRUOTI NAUJI KADASTRINIAI MATAVIMAI;
- BUTAS PARDUODAMAS SU BALDAIS BEI BUITINE TECHNIKA;
- ERDVI SVETAINĖ IR MIEGAMASIS SU IŠĖJIMAIS Į ĮSTIKLINTUS BALKONUS, DARBO KAMBARYS, VIRTUVĖ, HOLAS IR VONIOS BEI TUALETO PATALPOS;
- DUŠO KABINA IR NAUJAS VONIOS RANKŠLUOSČIŲ DŽIOVINTUVAS;
- BUTUI PRIKLAUSO RŪSYS. TVARKINGA LAIPTINĖ;
- RENOVUOJANT NAMĄ ATNAUJINTA ŠILDYMO SISTEMA;
- NETOLIESE "VYTURIO" PROGIMNAZIJA, ATMINIMO SKVERAS; MIESTO CENTRAS 5 MINUTĖS PĖSČIOMIS. PATOGIU ATSTUMU TEATRAI, ADMINISTRACINĖS, GYDYMO ĮSTAIGOS, VAIKŲ DARŽELIAI IR PREKYBOS CENTRAI.
BENDRA INFORMACIJA:
- Adresas – Tulpų g. 1, Panevėžys;
- Bendras plotas – 65.80 kv.m.;
- Kambarių skaičius – 3;
- Aukštas – 5/5;
- Du įstiklinti balkonai;
- Namo tipas – blokinis, renovuotas;
- Šildymas – centrinis.
ĮRENGIMAS:
- Sienos – dažytos ir tapetuotos. Virtuvėje – mediena ir plytelės. Vonios ir tualeto patalpose sienos klijuotos plytelėmis;
- Grindys – parketas, vonios ir tualeto patalpose – klijuotos plytelėmis;
- Langai – mediniai ir plastikiniai;
- Durys – lauko – medinės, vidaus – medžio masyvo;
- Apšvietimas – šviestuvai ir integruotos lempos.
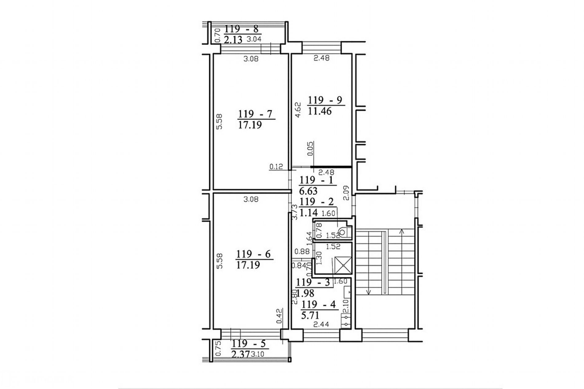
BUTO PLANAS:
- Kambarys - 17.19 kv,m.;
- Kambarys - 17.19 kv,m.;
- Kambarys - 11.46 kv,m.;
- Virtuvė - 5.71 kv,m.;
- Holas - 6,63 kv,m.;
- Tualetas - 1.14 kv,m.;
- Vonia - 1.98 kv,m.;
- Balkonas - 2.37 kv,m.;
- Balkonas - 2.13 kv,m.
PIRKĖJAMS NĖRA TARPININKAVIMO MOKESČIO.
NEMOKAMAI KONSULTUOJU VISAIS NT KLAUSIMAIS.
RUMVI NT BROKERĖ SANDRA KAVALIAUSKIENĖ TEL. NR. 0 671 89 096 www.sandrakavaliauskiene.lt
Galite skambinti po darbo valandų ir šeštadieniais!
BENDRI PRIVALUMAI:
- RENOVACIJOS MOKESTIS SUMOKĖTAS;
- ATLIKTI IR ĮREGISTRUOTI NAUJI KADASTRINIAI MATAVIMAI;
- BUTAS PARDUODAMAS SU BALDAIS BEI BUITINE TECHNIKA;
- ERDVI SVETAINĖ IR MIEGAMASIS SU IŠĖJIMAIS Į ĮSTIKLINTUS BALKONUS, DARBO KAMBARYS, VIRTUVĖ, HOLAS IR VONIOS BEI TUALETO PATALPOS;
- DUŠO KABINA IR NAUJAS VONIOS RANKŠLUOSČIŲ DŽIOVINTUVAS;
- BUTUI PRIKLAUSO RŪSYS. TVARKINGA LAIPTINĖ;
- RENOVUOJANT NAMĄ ATNAUJINTA ŠILDYMO SISTEMA;
- NETOLIESE "VYTURIO" PROGIMNAZIJA, ATMINIMO SKVERAS; MIESTO CENTRAS 5 MINUTĖS PĖSČIOMIS. PATOGIU ATSTUMU TEATRAI, ADMINISTRACINĖS, GYDYMO ĮSTAIGOS, VAIKŲ DARŽELIAI IR PREKYBOS CENTRAI.
BENDRA INFORMACIJA:
- Adresas – Tulpų g. 1, Panevėžys;
- Bendras plotas – 65.80 kv.m.;
- Kambarių skaičius – 3;
- Aukštas – 5/5;
- Du įstiklinti balkonai;
- Namo tipas – blokinis, renovuotas;
- Šildymas – centrinis.
ĮRENGIMAS:
- Sienos – dažytos ir tapetuotos. Virtuvėje – mediena ir plytelės. Vonios ir tualeto patalpose sienos klijuotos plytelėmis;
- Grindys – parketas, vonios ir tualeto patalpose – klijuotos plytelėmis;
- Langai – mediniai ir plastikiniai;
- Durys – lauko – medinės, vidaus – medžio masyvo;
- Apšvietimas – šviestuvai ir integruotos lempos.
BUTO PLANAS:
- Kambarys - 17.19 kv,m.;
- Kambarys - 17.19 kv,m.;
- Kambarys - 11.46 kv,m.;
- Virtuvė - 5.71 kv,m.;
- Holas - 6,63 kv,m.;
- Tualetas - 1.14 kv,m.;
- Vonia - 1.98 kv,m.;
- Balkonas - 2.37 kv,m.;
- Balkonas - 2.13 kv,m.
PIRKĖJAMS NĖRA TARPININKAVIMO MOKESČIO.
NEMOKAMAI KONSULTUOJU VISAIS NT KLAUSIMAIS.
RUMVI NT BROKERĖ SANDRA KAVALIAUSKIENĖ TEL. NR. 0 671 89 096 www.sandrakavaliauskiene.lt
Galite skambinti po darbo valandų ir šeštadieniais!
Nuotraukos
