Įsiminti
Butas pardavimui, Panevėžys, Centras, Beržų g. id:1034305 3 kmb.
65 500 €
1 023 €/m²
REKLAMA
Įmoka
247 €/mėn
Paskola 55 675 €
Palūkanos 3.40%
Trukmė 30 metų
Įsiminė
0
Parodymai
Šiandien: 47
Viso: 47
Peržiūros
Šiandien: 6
Viso: 6
Objekto informacija
Aprašymas
Parduodamas erdvus 3 kambarių butas Beržų gatvėje, mūriniame 12-os aukštų name 11-ame aukšte. Namas turi 2 liftus, įrengtas įvažiavimas neįgaliesiems. Puiki vieta netoli miesto centro – gera infrastruktūra ir susisiekimas, šalia PC “LIDL”, vaikų darželiai, mokyklos.
Butui reikalingas remontas – tai galimybė Jums butą įsirengti pagal savo poreikius.
PRIVALUMAI:
• Erdvi svetainė, iš kurios patenkama į didelį balkoną su puikia panorama
• Nepereinami kambariai
• Langai orientuoti į rytus ir šiaurę
• Vonios patalpa ir wc atskirai
• Yra rūsys
• 2 liftai
• Įvažiavimas neįgaliesiems
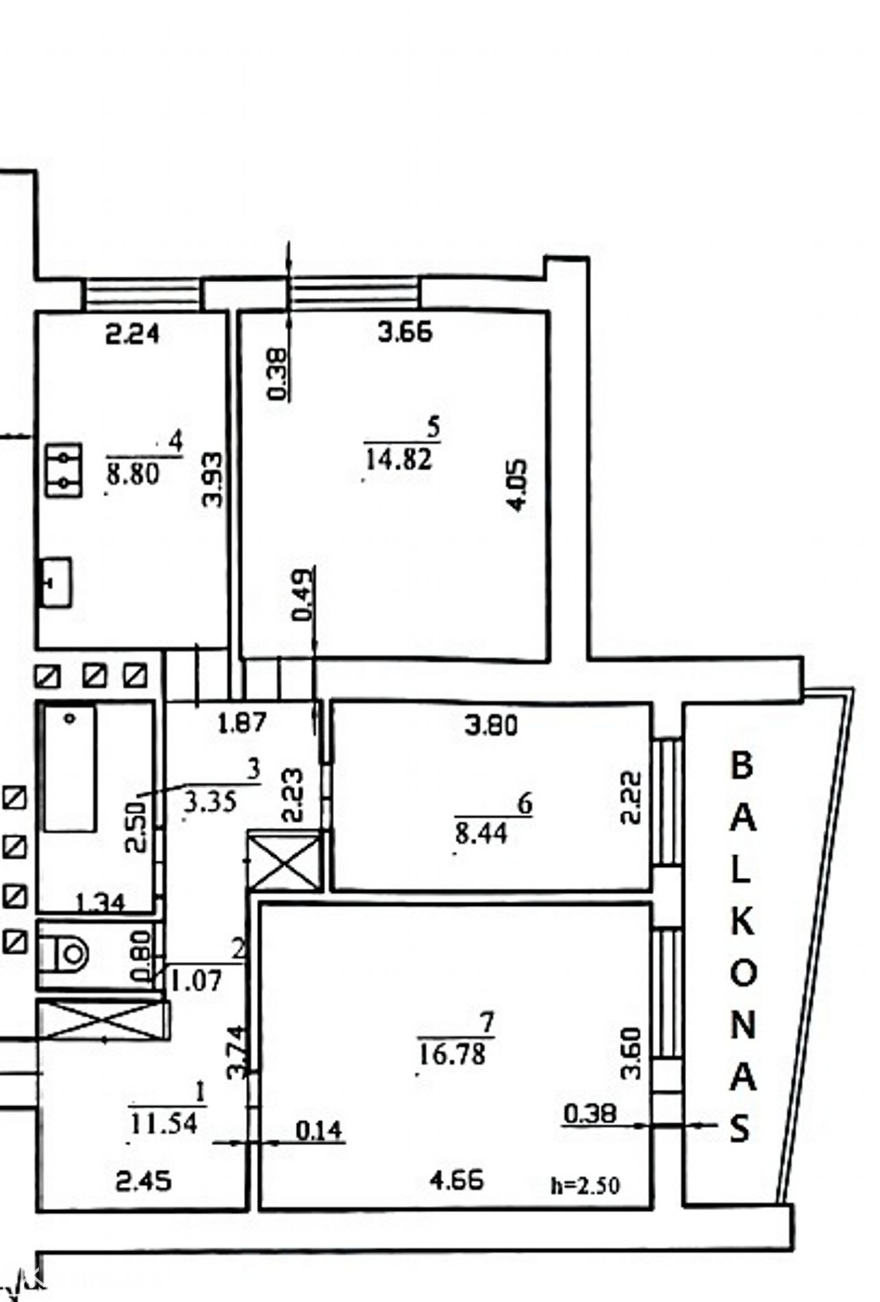
IŠPLANAVIMAS:
• Svetainė: 16,78 kv.m.
• Kambarys: 14,82 kv.m.
• Kambarys: 8,44 kv.m.
• Virtuvė: 8,80 kv.m.
• Koridorius: 11,54 kv.m.
• Vonia ir wc: 3,35 kv.m. ir 1,07 kv.m.
BENDRA INFORMACIJA:
• Adresas: Panevėžys, Beržų g.25
• Aukštas: 11/12
• Statybos metai: 1981
• Šildymas: centrinis
• Langai: 2 kambariuose ir virtuvėje plastikiniai, 1 kambaryje - su mediniais rėmais
• Durys: dvigubos medinės
• Rūsys: yra
ŠILDYMO KAŠTAI:
• 2025 m. sausio mėn. – 60 Eur
• 2025 m. vasario mėn. – 73 Eur
• 2025 m. kovo mėn. – 42 Eur
INFRASTRUKTŪRA:
Netoliese – parduotuvės, darželiai, mokyklos, viešojo transporto stotelės, miesto centras.
________________________________________
SUSITARKIME DĖL APŽIŪROS! SKAMBINKITE +37068113686 ARBA RAŠYKITE [email protected]
PIRKĖJAMS TARPININKAVIMO MOKESČIO NĖRA.
CAPITAL NT brokerė Inga Lialienė
Visus naujausius CAPITAL nekilnojamojo turto skelbimus rasite mūsų internetiniame puslapyje www.capital.lt. Kviečiame apsilankyti!
Butui reikalingas remontas – tai galimybė Jums butą įsirengti pagal savo poreikius.
PRIVALUMAI:
• Erdvi svetainė, iš kurios patenkama į didelį balkoną su puikia panorama
• Nepereinami kambariai
• Langai orientuoti į rytus ir šiaurę
• Vonios patalpa ir wc atskirai
• Yra rūsys
• 2 liftai
• Įvažiavimas neįgaliesiems
IŠPLANAVIMAS:
• Svetainė: 16,78 kv.m.
• Kambarys: 14,82 kv.m.
• Kambarys: 8,44 kv.m.
• Virtuvė: 8,80 kv.m.
• Koridorius: 11,54 kv.m.
• Vonia ir wc: 3,35 kv.m. ir 1,07 kv.m.
BENDRA INFORMACIJA:
• Adresas: Panevėžys, Beržų g.25
• Aukštas: 11/12
• Statybos metai: 1981
• Šildymas: centrinis
• Langai: 2 kambariuose ir virtuvėje plastikiniai, 1 kambaryje - su mediniais rėmais
• Durys: dvigubos medinės
• Rūsys: yra
ŠILDYMO KAŠTAI:
• 2025 m. sausio mėn. – 60 Eur
• 2025 m. vasario mėn. – 73 Eur
• 2025 m. kovo mėn. – 42 Eur
INFRASTRUKTŪRA:
Netoliese – parduotuvės, darželiai, mokyklos, viešojo transporto stotelės, miesto centras.
________________________________________
SUSITARKIME DĖL APŽIŪROS! SKAMBINKITE +37068113686 ARBA RAŠYKITE [email protected]
PIRKĖJAMS TARPININKAVIMO MOKESČIO NĖRA.
CAPITAL NT brokerė Inga Lialienė
Visus naujausius CAPITAL nekilnojamojo turto skelbimus rasite mūsų internetiniame puslapyje www.capital.lt. Kviečiame apsilankyti!
Nuotraukos
