Įsiminti
Butas pardavimui, Palanga, Vytauto g. id:1034675 2 kmb.
245 000 €
6 447 €/m²
REKLAMA
Įmoka
924 €/mėn
Paskola 208 250 €
Palūkanos 3.40%
Trukmė 30 metų
Įsiminė
0
Parodymai
Šiandien: 21
Viso: 4912
Peržiūros
Šiandien: 4
Viso: 331
Objekto informacija
Papildoma įranga
Aprašymas
Naujos statybos name parduodami naujas, stilingas vieno miegamojo butas su parkingu, kuriame viskas pilnai įrengta iki smulkių interjero detalių!
Centrinėje miesto dalyje, iki pušynų ir jūros 10 minučių pėsčiomis, netoli kurorto traukos taškų.
Tai puiki vieta poilsiui ir gyvenimui Palangoje!
www.vytauto134a.lt
=======================================
PRIVALUMAI:
• Nauja statyba;
• Miesto centrinėje dalyje, iki jūros 10min. pėsčiomis (tiesiai Kąstyčio gatve);
• Pilnai įrengtas butas;
• Pirmas aukštas su langais iki grindų - galima išeiti į lauką;
• Daug vietos daiktams susidėti - talpūs, pagal užsakymą pagaminti korpusiniai baldai – net kelios aukštos svetainės ir miegamojo spintos, vonios spinta, TV spintelė;
• Virtuvė su integruota buitine technika (indaplovė, didelis šaldytuvas, gartraukis, viryklė, orkaitė su mikro- bangų funkcija); taip pat skalbimo mašina, TV.
• Kokybiški baldai: prabangios lovos su čiužiniais, svetainės baldai, minkštieji baldai, stalai, kėdės;
• Interjero detalės: originalūs šviestuvai kilimai, lovatiesės, pagalvėlės ir kiti dekoro elementai;
• Modernus buto apšvietimo valdymas;
• PARKINGAS ĮSKAIČIUOTAS Į KAINĄ;
• Galimybė įsigyti sandėliuką.
=======================================
PAGRINDINĖ INFORMACIJA:
• Statybos metai: 2023;
• Namo tipas: mūrinis;
• Aukštas: 1/4;
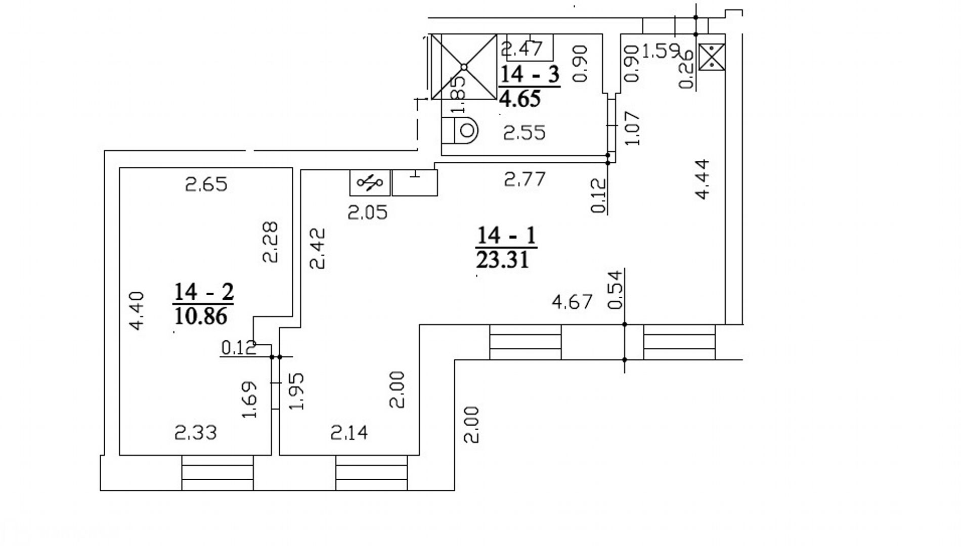
• Bendras buto plotas: 38,82kv.m.
• 2 kambariai (miegamasis ir svetainė, sujungta su virtuve);
• Grindinis dujinis šildymas;
• Dujinis autonominis katilas;
• Kondicionierius,
• Sieninis rekuperatorius;
• Kodinė buto durų spyna bei kodinis įėjimas į laiptinę.
Šiame pastate galime pasiūlyti ir daugiau butų, 2-3 kambarių.
=======================================
Susisiekime ir susitarkime dėl apžiūros!
Kristina Telpokaitė. tel. +370 650 23007 Visus naujausius CAPITAL nekilnojamojo turto skelbimus rasite mūsų internetiniame puslapyje www.capital.lt. Kviečiame apsilankyti!
Centrinėje miesto dalyje, iki pušynų ir jūros 10 minučių pėsčiomis, netoli kurorto traukos taškų.
Tai puiki vieta poilsiui ir gyvenimui Palangoje!
www.vytauto134a.lt
=======================================
PRIVALUMAI:
• Nauja statyba;
• Miesto centrinėje dalyje, iki jūros 10min. pėsčiomis (tiesiai Kąstyčio gatve);
• Pilnai įrengtas butas;
• Pirmas aukštas su langais iki grindų - galima išeiti į lauką;
• Daug vietos daiktams susidėti - talpūs, pagal užsakymą pagaminti korpusiniai baldai – net kelios aukštos svetainės ir miegamojo spintos, vonios spinta, TV spintelė;
• Virtuvė su integruota buitine technika (indaplovė, didelis šaldytuvas, gartraukis, viryklė, orkaitė su mikro- bangų funkcija); taip pat skalbimo mašina, TV.
• Kokybiški baldai: prabangios lovos su čiužiniais, svetainės baldai, minkštieji baldai, stalai, kėdės;
• Interjero detalės: originalūs šviestuvai kilimai, lovatiesės, pagalvėlės ir kiti dekoro elementai;
• Modernus buto apšvietimo valdymas;
• PARKINGAS ĮSKAIČIUOTAS Į KAINĄ;
• Galimybė įsigyti sandėliuką.
=======================================
PAGRINDINĖ INFORMACIJA:
• Statybos metai: 2023;
• Namo tipas: mūrinis;
• Aukštas: 1/4;
• Bendras buto plotas: 38,82kv.m.
• 2 kambariai (miegamasis ir svetainė, sujungta su virtuve);
• Grindinis dujinis šildymas;
• Dujinis autonominis katilas;
• Kondicionierius,
• Sieninis rekuperatorius;
• Kodinė buto durų spyna bei kodinis įėjimas į laiptinę.
Šiame pastate galime pasiūlyti ir daugiau butų, 2-3 kambarių.
=======================================
Susisiekime ir susitarkime dėl apžiūros!
Kristina Telpokaitė. tel. +370 650 23007 Visus naujausius CAPITAL nekilnojamojo turto skelbimus rasite mūsų internetiniame puslapyje www.capital.lt. Kviečiame apsilankyti!

