Įsiminti
Butas pardavimui, Klaipėda, Senamiestis, Turgaus g. id:1028061 3 kmb.
680 000 €
6 018 €/m²
REKLAMA
Įmoka
2 563 €/mėn

Paskola 578 000 €
Palūkanos 3.40%
Trukmė 30 metų
Įsiminė
0
Parodymai
Šiandien: 25
Viso: 1367
Peržiūros
Šiandien: 20
Viso: 243
Objekto informacija
Papildoma įranga
Papildomos patalpos
Apsauga
REKLAMA
REKLAMA
Aprašymas
Klaipėdos senamiesčio ritmu – apartamentai su vaizdu, kurį verta turėti!
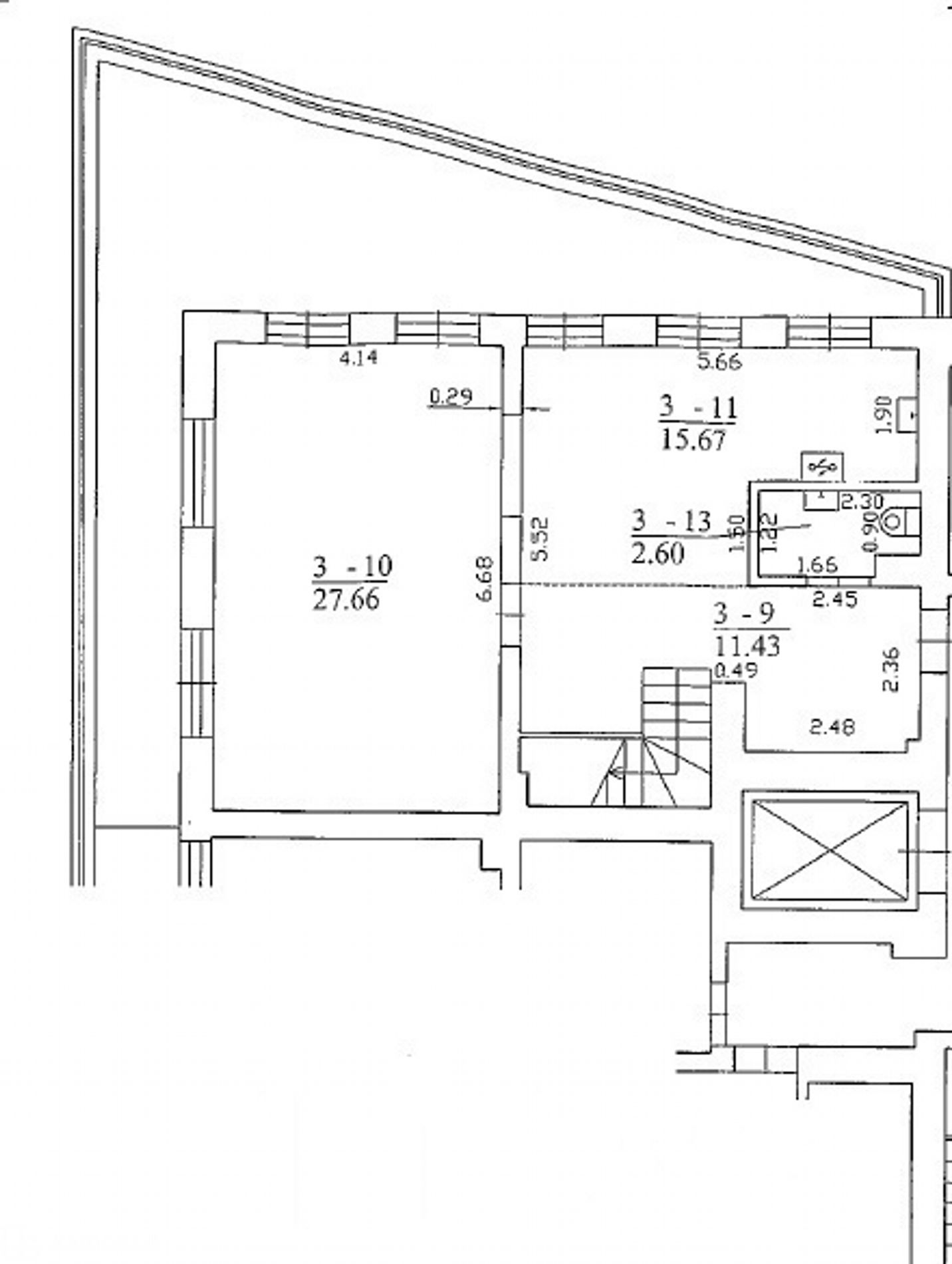
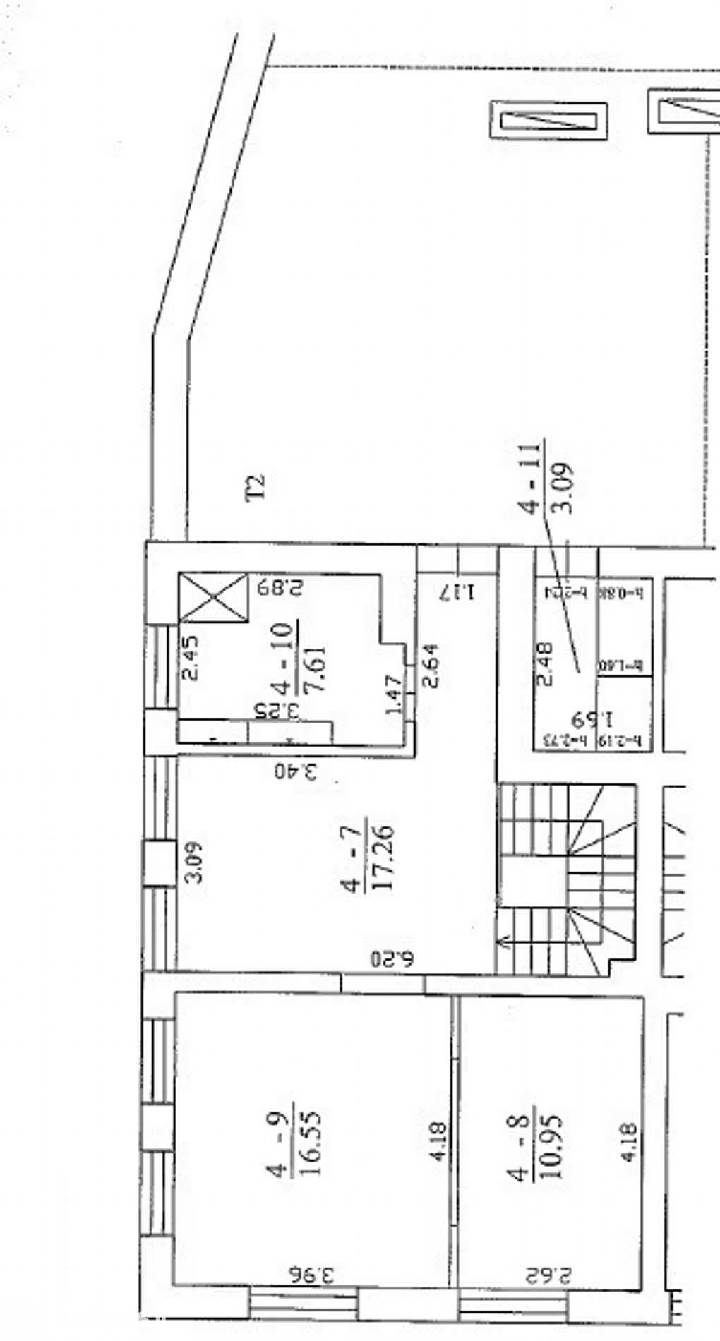
Ieškai gyvenimo, kuris kvėpuoja istorija ir elegancija? 113 kv. m apartamentai per du aukštus Turgaus g.:
* Svajojate gyventi pačioje senamiesčio širdyje ir mėgautis ramybe, saugia ir negausia kaimynyste, šis butas skirtas Jums. Pastatas randasi labiausiai vertinamoje unikalioje Klaipėdos senamiesčio dalyje, pro langus , iš balkono ir terasos atsiveria nuostabi panorama į Klaipėdos senamiestį ir Dangės upę.
* Tai prestižinis, nestandartinių architektūrinių sprendimų projektas , 4 aukštų pastate yra 20 butų ,gyventojų patogumui įrengtas liftas, pirmame namo aukšte įsikūrusios verslo įmonės ir grožio salonas. Puikiai sutvarkytos bendros erdvės, ramybe alsuojantis vidinis kiemelis Jums ir Jūsų šeimai.
* Apartamentai šviesūs, erdvūs, aukštomis lubomis, vitrininiais langais. Parduodama su baldais ir buitine technika.
* Puikiai išvystyta infrastruktūra ,šalia- dviračių takai, jaukios kavinės ir restoranai , 5 min. iki kelto.
* Priklauso pirmame aukšte esantis sandėliukas ir parkavimo vieta kieme, balkonas ir apie 40 kv.m. terasa .
* Jei svarstote įsigyti būstą kaip investiciją-Klaipėdos senamiestyje, būstas visada išlaiko savo vertę.
DĖMESIO! Tarpininkavimo mokestis pirkėjui NETAIKOMAS!
pardavimo kaina 680 000 EUR
Ieškai gyvenimo, kuris kvėpuoja istorija ir elegancija? 113 kv. m apartamentai per du aukštus Turgaus g.:
* Svajojate gyventi pačioje senamiesčio širdyje ir mėgautis ramybe, saugia ir negausia kaimynyste, šis butas skirtas Jums. Pastatas randasi labiausiai vertinamoje unikalioje Klaipėdos senamiesčio dalyje, pro langus , iš balkono ir terasos atsiveria nuostabi panorama į Klaipėdos senamiestį ir Dangės upę.
* Tai prestižinis, nestandartinių architektūrinių sprendimų projektas , 4 aukštų pastate yra 20 butų ,gyventojų patogumui įrengtas liftas, pirmame namo aukšte įsikūrusios verslo įmonės ir grožio salonas. Puikiai sutvarkytos bendros erdvės, ramybe alsuojantis vidinis kiemelis Jums ir Jūsų šeimai.
* Apartamentai šviesūs, erdvūs, aukštomis lubomis, vitrininiais langais. Parduodama su baldais ir buitine technika.
* Puikiai išvystyta infrastruktūra ,šalia- dviračių takai, jaukios kavinės ir restoranai , 5 min. iki kelto.
* Priklauso pirmame aukšte esantis sandėliukas ir parkavimo vieta kieme, balkonas ir apie 40 kv.m. terasa .
* Jei svarstote įsigyti būstą kaip investiciją-Klaipėdos senamiestyje, būstas visada išlaiko savo vertę.
DĖMESIO! Tarpininkavimo mokestis pirkėjui NETAIKOMAS!
pardavimo kaina 680 000 EUR
Nuotraukos


















