Įsiminti
Butas pardavimui, Kaunas, Dainava, Partizanų g. id:1028823 3 kmb.
130 000 €
2 131 €/m²
REKLAMA
Įmoka
490 €/mėn

Paskola 110 500 €
Palūkanos 3.40%
Trukmė 30 metų
Įsiminė
0
Parodymai
Šiandien: 20
Viso: 2070
Peržiūros
Šiandien: 0
Viso: 111
Objekto informacija
Papildoma įranga
REKLAMA
REKLAMA
Aprašymas
Parduodamas 3 kambarių butas Kaune, Partizanų g.
Parduodamas šviesus ir erdvus 3 kambarių butas renovuotame mūriniame name – puikus pasirinkimas tiek gyvenimui, tiek investicijai. Namas prižiūrėtas, aplinka sutvarkyta, švarios laiptinės, įrengti nauji liftai, aplink daug žalumos ir ramybės.
PRIVALUMAI:
Patogus išplanavimas – visi kambariai atskiri, daug natūralios šviesos.
Du įstiklinti balkonai, puikiai tinkantys poilsiui ar vakarojimui.
Kadangi namas mūrinis – galima laisvai pertvarkyti erdves pagal savo poreikius.
Švari, tvarkinga laiptinė, modernūs liftai, renovuotas fasadas.
Ramus vidinis kiemas, žaliosios zonos, patogi aplinka.
Erdvus kiemas parkavimui, šalia yra mokama automobilių stovėjimo aikštelė
Netoliese – magistralinis kelias Via Baltica, leidžiantis patogiai ir greitai pasiekti kitus miestus
BENDRA INFORMACIJA:
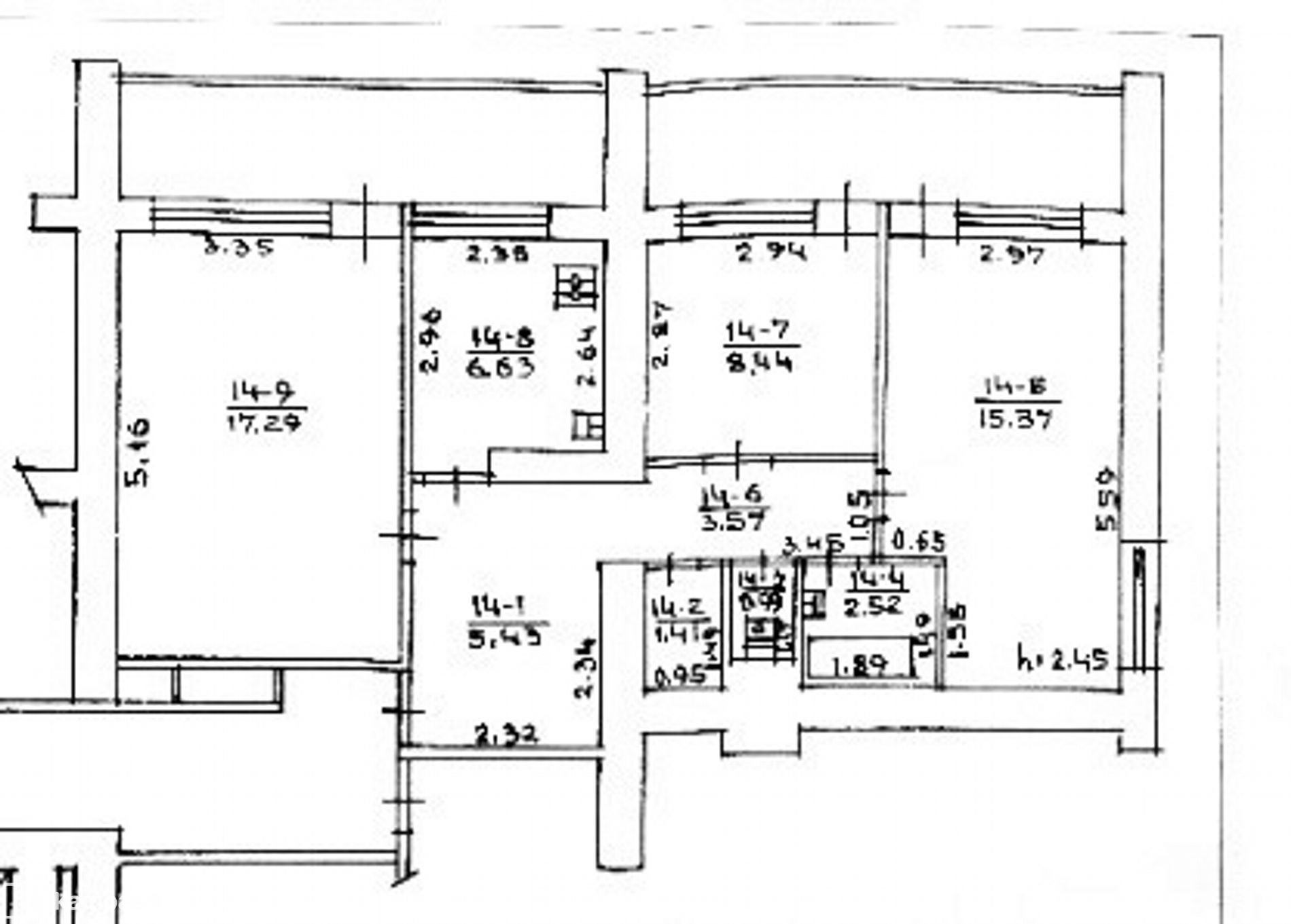
Plotas – 61,85 kv. m
Aukštas – 3 iš 12
Kambarių skaičius – 3
Statybos tipas – mūrinis namas (renovuotas)
Įstiklinti du ilgi balkonai per visą buto ilgį
Langai orientuoti į ramų vidinį kiemą
IŠPLANAVIMAS:
Erdvi svetainė – 17,29 kv. m su išėjimu į balkoną
Miegamasis kambarys – 8,84 kv. m
Kitas kambarys – 15,37 kv. m su išėjimu į balkoną
Virtuvė – 6,65 kv. m
Vonios kambarys – 2,52 kv. m
Tualetas – 0,95 kv. m
Prieškambaris / koridorius – apie 5,45 kv. m
Sandėliukas – 1,89 kv. m
VIETA:
Strategiškai patogi vieta – šalia parduotuvės, mokyklos, darželiai, viešojo transporto stotelės.
Puikus susisiekimas su miesto centru ir kitais mikrorajonais.
Draugiška, rami kaimynystė. Visus naujausius CAPITAL nekilnojamojo turto skelbimus rasite mūsų internetiniame puslapyje www.capital.lt. Kviečiame apsilankyti!
CAPITAL Kaunas sertifikuota LNTAA brokerė Evelina Vičiūnienė, tel. +370 655 336 02
PARDUODATE? Skambinkite, suteiksiu informaciją nemokamai.
GALITE SKAMBINTI IR SAVAITGALIAIS.
CAPITAL KAUNAS klientams išskirtinės finansavimo sąlygos Swedbank, SEB, Luminor bankuose. Padedame sutvarkyti paskolas.
Parduodamas šviesus ir erdvus 3 kambarių butas renovuotame mūriniame name – puikus pasirinkimas tiek gyvenimui, tiek investicijai. Namas prižiūrėtas, aplinka sutvarkyta, švarios laiptinės, įrengti nauji liftai, aplink daug žalumos ir ramybės.
PRIVALUMAI:
Patogus išplanavimas – visi kambariai atskiri, daug natūralios šviesos.
Du įstiklinti balkonai, puikiai tinkantys poilsiui ar vakarojimui.
Kadangi namas mūrinis – galima laisvai pertvarkyti erdves pagal savo poreikius.
Švari, tvarkinga laiptinė, modernūs liftai, renovuotas fasadas.
Ramus vidinis kiemas, žaliosios zonos, patogi aplinka.
Erdvus kiemas parkavimui, šalia yra mokama automobilių stovėjimo aikštelė
Netoliese – magistralinis kelias Via Baltica, leidžiantis patogiai ir greitai pasiekti kitus miestus
BENDRA INFORMACIJA:
Plotas – 61,85 kv. m
Aukštas – 3 iš 12
Kambarių skaičius – 3
Statybos tipas – mūrinis namas (renovuotas)
Įstiklinti du ilgi balkonai per visą buto ilgį
Langai orientuoti į ramų vidinį kiemą
IŠPLANAVIMAS:
Erdvi svetainė – 17,29 kv. m su išėjimu į balkoną
Miegamasis kambarys – 8,84 kv. m
Kitas kambarys – 15,37 kv. m su išėjimu į balkoną
Virtuvė – 6,65 kv. m
Vonios kambarys – 2,52 kv. m
Tualetas – 0,95 kv. m
Prieškambaris / koridorius – apie 5,45 kv. m
Sandėliukas – 1,89 kv. m
VIETA:
Strategiškai patogi vieta – šalia parduotuvės, mokyklos, darželiai, viešojo transporto stotelės.
Puikus susisiekimas su miesto centru ir kitais mikrorajonais.
Draugiška, rami kaimynystė. Visus naujausius CAPITAL nekilnojamojo turto skelbimus rasite mūsų internetiniame puslapyje www.capital.lt. Kviečiame apsilankyti!
CAPITAL Kaunas sertifikuota LNTAA brokerė Evelina Vičiūnienė, tel. +370 655 336 02
PARDUODATE? Skambinkite, suteiksiu informaciją nemokamai.
GALITE SKAMBINTI IR SAVAITGALIAIS.
CAPITAL KAUNAS klientams išskirtinės finansavimo sąlygos Swedbank, SEB, Luminor bankuose. Padedame sutvarkyti paskolas.
Nuotraukos





















