Įsiminti
Butas pardavimui, Kaunas, Centras, Krėvos g. id:1037532 3 kmb.
329 000 €
4 768 €/m²
REKLAMA
Įmoka
1 240 €/mėn
Paskola 279 650 €
Palūkanos 3.40%
Trukmė 30 metų
Įsiminė
0
Parodymai
Šiandien: 401
Viso: 401
Peržiūros
Šiandien: 12
Viso: 12
Objekto informacija
Aprašymas
3 kambarių Japandi stiliaus butas „Parko namuose“ – Krėvos g. 6, Kaunas
Parduodamas šviesus ir jaukus 3 kambarių butas naujos statybos projekte „Parko namai“ – vietoje, kur miestas susilieja su gamta. Tai puikus pasirinkimas tiems, kurie ieško modernaus būsto ir vertina ramybę, natūralius atspalvius bei minimalistinį stilių.
Iš karto už lango – žali plotai, takai pasivaikščiojimams, rytinė kava gali tapti nedidele ceremonija stebint gamtą. Name vyrauja draugiška, šeimoms patogi aplinka, švarios ir prižiūrimos bendrosios erdvės, o automobilį visada turėsite kur pastatyti – butui priklauso parkavimo vieta.
PAGRINDINĖ INFORMACIJA
Adresas: Krėvos g. 6, Kaunas
Plotas: 69,13 m²
Kambariai: 3
Aukštas: 4/5
Statybos metai: 2023
Baigtumas: 86 %
Pastato tipas: blokinis
Priklauso parkavimo vieta
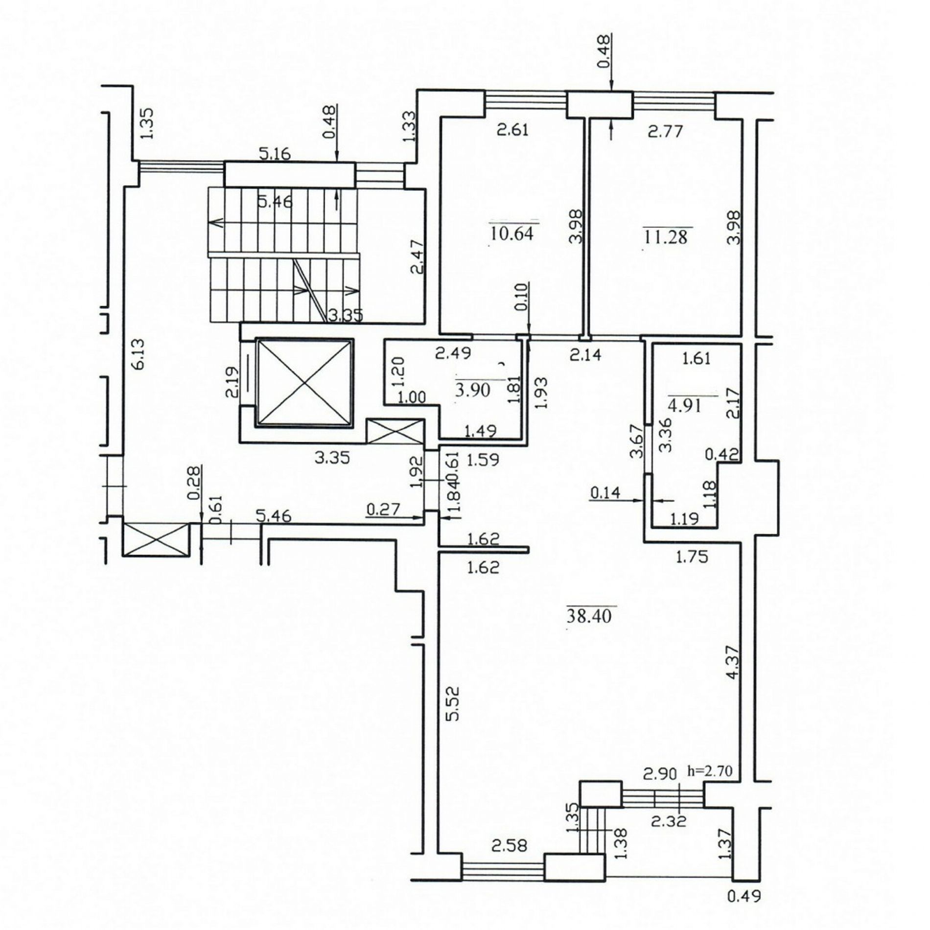
IŠPLANAVIMAS
Svetainė su virtuve – 38.40 m²
Miegamasis – 11.28 m²
Vaikų/darbo kambarys – 10.64 m²
Vonia/WC – 4.91 m²
Koridorius – 3.90 m²
Protingas išdėstymas leidžia erdvei „kvėpuoti“, todėl net ir ramybės pilnos zonos išlieka šviesios ir funkcionalios.
APIE „PARKO NAMUS“
Projektas kurtas galvojant apie žmones, kurie nori gyventi šiuolaikiškai, bet nepasinerti į miesto triukšmą.
Aplink daug žalumos, netoliese parkas – ideali vieta pasivaikščiojimams su vaikais, bėgiojimui ar jaukiam vakariniam ratui. Kieme erdvės mažiesiems, saugios zonos šeimoms.
Namas naujas, modernios energinės klasės, šiltas ir ekonomiškas išlaikyti.
KODĖL VERTA RINKTIS?
✓ Naujai pastatytas, kokybiškas ir šviesus butas
✓ Rami, gamtos apsupta vieta – atokiau nuo transporto triukšmo
✓ Estetiškas Japandi interjero stilius – natūralūs tonai, švara ir jaukumas
✓ Patogi lokacija – netoli mokyklos, darželiai, prekybos centrai
✓ Puikus pasirinkimas šeimai, porai ar kaip investicija nuomai
✓ Priklauso parkavimo vieta
Tai vieta žmonėms, kurie nori daugiau ramybės, šilumos ir naminio jaukumo.
Būstas laukia naujų savininkų, kurie tęstų šią istoriją.
Daugiau informacijos telefonu +370 656 09624 Visus naujausius CAPITAL nekilnojamojo turto skelbimus rasite mūsų internetiniame puslapyje www.capital.lt. Kviečiame apsilankyti!
Parduodamas šviesus ir jaukus 3 kambarių butas naujos statybos projekte „Parko namai“ – vietoje, kur miestas susilieja su gamta. Tai puikus pasirinkimas tiems, kurie ieško modernaus būsto ir vertina ramybę, natūralius atspalvius bei minimalistinį stilių.
Iš karto už lango – žali plotai, takai pasivaikščiojimams, rytinė kava gali tapti nedidele ceremonija stebint gamtą. Name vyrauja draugiška, šeimoms patogi aplinka, švarios ir prižiūrimos bendrosios erdvės, o automobilį visada turėsite kur pastatyti – butui priklauso parkavimo vieta.
PAGRINDINĖ INFORMACIJA
Adresas: Krėvos g. 6, Kaunas
Plotas: 69,13 m²
Kambariai: 3
Aukštas: 4/5
Statybos metai: 2023
Baigtumas: 86 %
Pastato tipas: blokinis
Priklauso parkavimo vieta
IŠPLANAVIMAS
Svetainė su virtuve – 38.40 m²
Miegamasis – 11.28 m²
Vaikų/darbo kambarys – 10.64 m²
Vonia/WC – 4.91 m²
Koridorius – 3.90 m²
Protingas išdėstymas leidžia erdvei „kvėpuoti“, todėl net ir ramybės pilnos zonos išlieka šviesios ir funkcionalios.
APIE „PARKO NAMUS“
Projektas kurtas galvojant apie žmones, kurie nori gyventi šiuolaikiškai, bet nepasinerti į miesto triukšmą.
Aplink daug žalumos, netoliese parkas – ideali vieta pasivaikščiojimams su vaikais, bėgiojimui ar jaukiam vakariniam ratui. Kieme erdvės mažiesiems, saugios zonos šeimoms.
Namas naujas, modernios energinės klasės, šiltas ir ekonomiškas išlaikyti.
KODĖL VERTA RINKTIS?
✓ Naujai pastatytas, kokybiškas ir šviesus butas
✓ Rami, gamtos apsupta vieta – atokiau nuo transporto triukšmo
✓ Estetiškas Japandi interjero stilius – natūralūs tonai, švara ir jaukumas
✓ Patogi lokacija – netoli mokyklos, darželiai, prekybos centrai
✓ Puikus pasirinkimas šeimai, porai ar kaip investicija nuomai
✓ Priklauso parkavimo vieta
Tai vieta žmonėms, kurie nori daugiau ramybės, šilumos ir naminio jaukumo.
Būstas laukia naujų savininkų, kurie tęstų šią istoriją.
Daugiau informacijos telefonu +370 656 09624 Visus naujausius CAPITAL nekilnojamojo turto skelbimus rasite mūsų internetiniame puslapyje www.capital.lt. Kviečiame apsilankyti!
Nuotraukos
