Įsiminti
Sklypas pardavimui, Vilnius, Liepkalnis, Liepkalnio g. id:1036173
190 000 €
26 027 €/a
REKLAMA
Įmoka
716 €/mėn
Paskola 161 500 €
Palūkanos 3.40%
Trukmė 30 metų
Įsiminė
0
Parodymai
Šiandien: 127
Viso: 127
Peržiūros
Šiandien: 19
Viso: 19
Objekto informacija
Aprašymas
Parduodamas namų valdos žemės sklypas su statybos leidimu dvibučiui gyvenamajam namui Liepkalnio g. 36A, Vilniuje
-----------------------------------
PRIVALUMAI:
Puiki lokacija - centrinė miesto dalis;
Patogus susisiekimas su visais sostinės mikrorajonais;
Netoliese viešojo transporto stotelė, parduotuvės, Liepkalnio slidinėjimo trasos.
-----------------------------
BENDRA INFORMACIJA:
• Adresas: Liepkalnio g. 36A, Vilnius
• Sklypo plotas: 7.3 a
• Žemės paskirtis: kita
• Žemės sklypo naudojimo būdas: Gyvenamosios teritorijos
• Žemės sklypo naudojimo pobūdis: Mažaaukščių gyvenamųjų namų statybos
• Kadastriniai matavimai: atlikti
KOMUNIKACIJOS:
- Visos komunikacijos miesto.
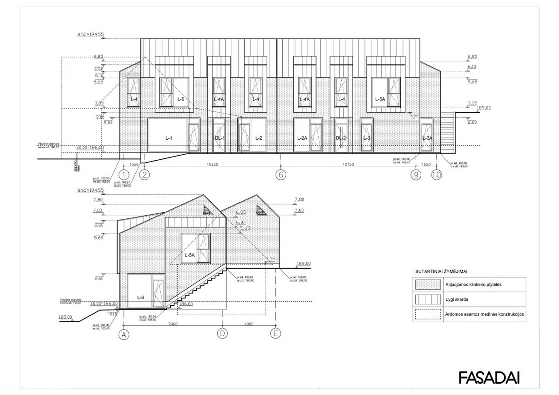
DVIBUČIO PROJEKTAS:
1 BUTAS viso 126,03 kv.m.;
1 aukštas viso 62,40 kv.m.:
- tamburas 3,54 kv.m.;
- holas 4,02 kv.m.;
- svetainė su virtuve 35,99 kv.m.;
- kambarys 10,08 lv.m.;
- sanmazgas-pagalbinė patalpa 8,77 kv.m.
2 aukštas viso 63,63 kv.m.:
- holas 4,41 kv.m.;
- kambarys 15,01 kv.m.;
- kambarys 13,25 kv.m.;
- kambarys 14,93 kv.m.;
- sanmazgas 6,06 kv.m.;
- sanmazgas 5,71 kv.m.;
- pagalbinės patalpos 4,26 kv.m.;
2 BUTAS viso 125,76 kv.m.;
1 aukštas viso 61,58 kv.m.:
- tamburas 3,54 kv.m.;
- holas 4,02 kv.m.;
- svetainė su virtuve 35,17 kv.m.;
- kambarys 10,08 lv.m.;
- sanmazgas-pagalbinė patalpa 8,77 kv.m.;
2 aukštas viso 64,18 kv.m.:
- holas 4,41 kv.m.;
- kambarys 15,01 kv.m.;
- kambarys 13,25 kv.m.;
- kambarys 15,48 kv.m.;
- sanmazgas 6,06 kv.m.;
- sanmazgas 5,71 kv.m.;
- pagalbinės patalpos 4,26 kv.m.
Visus naujausius CAPITAL nekilnojamojo turto skelbimus rasite mūsų internetiniame puslapyje www.capital.lt. Kviečiame apsilankyti!
Dėl detalesnės informacijos prašome kreiptis telefonu ar el. paštu.
Ieškote, parduodate ar nuomojate nekilnojamąjį turtą?
- Visada rasiu laiko Jums ir padėsiu visais su nekilnojamuoju turtu susijusiais klausimais!
Netiko kaina? Teikite savo pasiūlymą - būtinai apsvarstysime!
SKAMBINTI GALITE IR SAVAITGALIAIS - sutarsime Jums patogų apžiūros laiką.
_________________________
RIČARDAS NOSEVIČIUS
Mob. tel.: +37061817321
El. paštas: [email protected]
-----------------------------------
PRIVALUMAI:
Puiki lokacija - centrinė miesto dalis;
Patogus susisiekimas su visais sostinės mikrorajonais;
Netoliese viešojo transporto stotelė, parduotuvės, Liepkalnio slidinėjimo trasos.
-----------------------------
BENDRA INFORMACIJA:
• Adresas: Liepkalnio g. 36A, Vilnius
• Sklypo plotas: 7.3 a
• Žemės paskirtis: kita
• Žemės sklypo naudojimo būdas: Gyvenamosios teritorijos
• Žemės sklypo naudojimo pobūdis: Mažaaukščių gyvenamųjų namų statybos
• Kadastriniai matavimai: atlikti
KOMUNIKACIJOS:
- Visos komunikacijos miesto.
DVIBUČIO PROJEKTAS:
1 BUTAS viso 126,03 kv.m.;
1 aukštas viso 62,40 kv.m.:
- tamburas 3,54 kv.m.;
- holas 4,02 kv.m.;
- svetainė su virtuve 35,99 kv.m.;
- kambarys 10,08 lv.m.;
- sanmazgas-pagalbinė patalpa 8,77 kv.m.
2 aukštas viso 63,63 kv.m.:
- holas 4,41 kv.m.;
- kambarys 15,01 kv.m.;
- kambarys 13,25 kv.m.;
- kambarys 14,93 kv.m.;
- sanmazgas 6,06 kv.m.;
- sanmazgas 5,71 kv.m.;
- pagalbinės patalpos 4,26 kv.m.;
2 BUTAS viso 125,76 kv.m.;
1 aukštas viso 61,58 kv.m.:
- tamburas 3,54 kv.m.;
- holas 4,02 kv.m.;
- svetainė su virtuve 35,17 kv.m.;
- kambarys 10,08 lv.m.;
- sanmazgas-pagalbinė patalpa 8,77 kv.m.;
2 aukštas viso 64,18 kv.m.:
- holas 4,41 kv.m.;
- kambarys 15,01 kv.m.;
- kambarys 13,25 kv.m.;
- kambarys 15,48 kv.m.;
- sanmazgas 6,06 kv.m.;
- sanmazgas 5,71 kv.m.;
- pagalbinės patalpos 4,26 kv.m.
Visus naujausius CAPITAL nekilnojamojo turto skelbimus rasite mūsų internetiniame puslapyje www.capital.lt. Kviečiame apsilankyti!
Dėl detalesnės informacijos prašome kreiptis telefonu ar el. paštu.
Ieškote, parduodate ar nuomojate nekilnojamąjį turtą?
- Visada rasiu laiko Jums ir padėsiu visais su nekilnojamuoju turtu susijusiais klausimais!
Netiko kaina? Teikite savo pasiūlymą - būtinai apsvarstysime!
SKAMBINTI GALITE IR SAVAITGALIAIS - sutarsime Jums patogų apžiūros laiką.
_________________________
RIČARDAS NOSEVIČIUS
Mob. tel.: +37061817321
El. paštas: [email protected]
Nuotraukos
