Sklypas pardavimui, Širvintų r. sav., Kernavė, Gedimino g. id:1036233
27 000 €
27 000 €/ha
REKLAMA
Įmoka
102 €/mėn
Paskola 22 950 €
Palūkanos 3.40%
Trukmė 30 metų
Įsiminti
Įsiminė
0
Parodymai
Šiandien: 0
Viso: 165
Peržiūros
Šiandien: 0
Viso: 22
Objekto informacija
Aprašymas
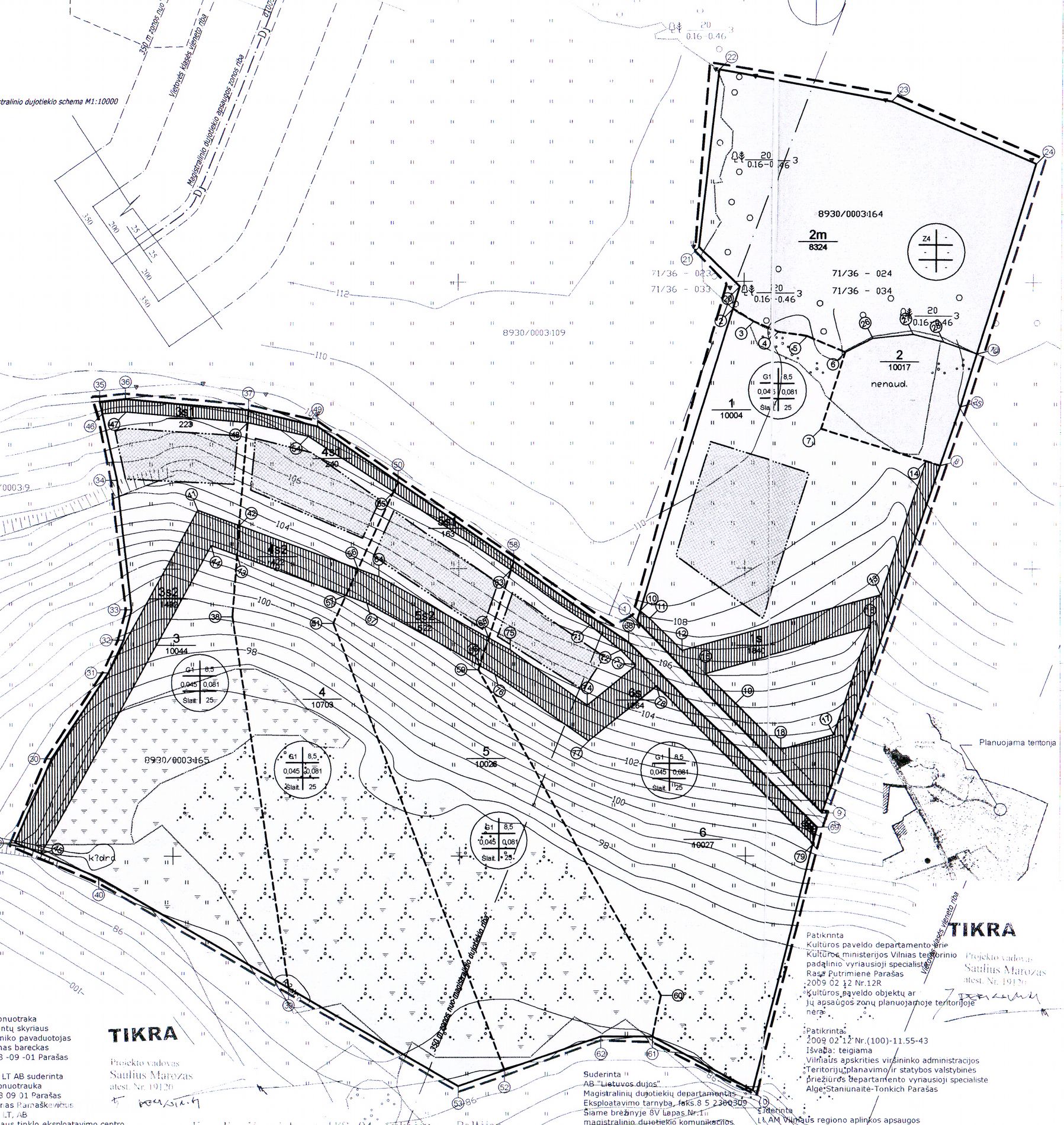
PARDUODAMAS SKLYPAS MAŽAAUKŠČIŲ GYVENAMŲJŲ NAMŲ STATYBAI ŠIRVINTŲ R., KERNAVĖS MSTL.
SKLYPAS:
* Sklypo plotas - 1,0027 Ha (sklypas nr. 6).
* Yra detalusis planas, elektros pastotė kvartalui.
* Numatytas vietinis gręžinys ir vietinė kanalizacija.
* Greta miško, šalia Kernavės ežeras.
* Žvyruotas privažiavimas.
Kartu galima įsigyti dar 5 sklypus. Bendras visų sklypų plotas 6,0821 Ha.
DOMINA IR KEITIMAS Į NEKILNOJAMĄ TURTĄ AR AUTOMOBILĮ.
Daugiau pasiūlymų www.vendors.lt
Nuotraukos
