Įsiminti
Namas pardavimui, Trakų r. sav., Moluvėnai, Svajonių g. id:1029342 5 kmb.
367 500 €
2 500 €/m²
REKLAMA
Įmoka
1 385 €/mėn
Paskola 312 375 €
Palūkanos 3.40%
Trukmė 30 metų
Įsiminė
0
Parodymai
Šiandien: 121
Viso: 1547
Peržiūros
Šiandien: 14
Viso: 267
Objekto informacija
Papildoma įranga
Apsauga
Aprašymas
🏡 PARDUODAMAS NAUJOS STATYBOS A++ KLASĖS NAMAS SU EŽERO PAKRANTE
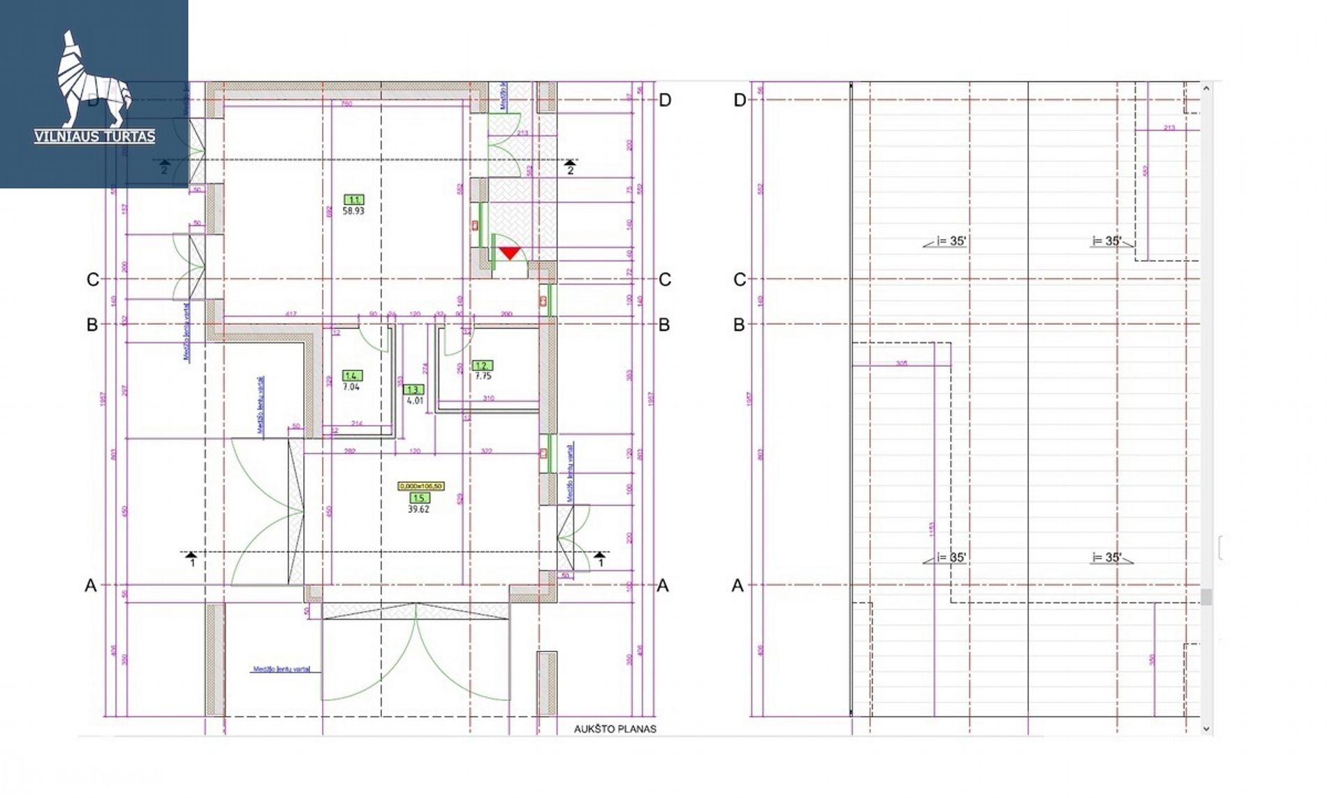
Parduodamas 147 m² ploto A++ energetinės klasės gyvenamasis namas vaizdingoje vietovėje su tiesiogine ežero pakrante.
Sklypo plotas – 12,5 a. Teritorija aptverta, pilnai sutvarkyta pagal aplinkotvarkos projektą: įrengtas privažiavimas, takai, veja, poilsio zona bei apšvietimas.
Tai puikus pasirinkimas šeimai, vertinančiai ramybę, privatumą ir gamtos artumą, tačiau norinčiai gyventi šiuolaikiškame, energiškai efektyviame name.
🏠 Pagrindinė informacija:
- Namo plotas: 147 m²
- Sklypas: 12,5 aro
- Paskirtis: gyvenamoji
- Energetinė klasė: A++
- Statybos pabaiga: iki 2026 m. spalio 1 d.
- Fasadas: pilnai išbaigtas pagal architektūrinį projektą
-Langai: aukštos kokybės medžio ir aliuminio kompozito, pagal projektą
- Terasa: įrengiama pagal projektą
- Stoginė: vieta 2 automobiliams
⚙️ Techninė informacija
- Įrengta grindinė šildymo sistema
- Šildymo sistema – oras–vanduo
- Įrengti visų komunikacijų įvadai
- Grindys išbetonuotos
- Vidaus pertvaros įrengiamos pagal pirkėjo individualų projektą
- Komunikacijos: vietiniai nuotekų valymo įrenginiai
- Vanduo – iš gręžinio
💰 Pardavimo sąlygos
- Pasirašoma nekilnojamojo daikto rezervavimo sutartis
- Galimybė mokėti dalimis, pagal statybų etapus, iki statybos darbų pabaigos
🌿 Privalumai
Vaizdinga vietovė su ežero pakrante
Sutvarkytas gerbuvis, aptverta teritorija
Modernus A++ klasės namas su efektyvia šildymo sistema
Galimybė pritaikyti vidaus planą pagal savo poreikius
Patogus apmokėjimo grafikas – mokėjimai etapais iki statybų pabaigos
Parduodamas 147 m² ploto A++ energetinės klasės gyvenamasis namas vaizdingoje vietovėje su tiesiogine ežero pakrante.
Sklypo plotas – 12,5 a. Teritorija aptverta, pilnai sutvarkyta pagal aplinkotvarkos projektą: įrengtas privažiavimas, takai, veja, poilsio zona bei apšvietimas.
Tai puikus pasirinkimas šeimai, vertinančiai ramybę, privatumą ir gamtos artumą, tačiau norinčiai gyventi šiuolaikiškame, energiškai efektyviame name.
🏠 Pagrindinė informacija:
- Namo plotas: 147 m²
- Sklypas: 12,5 aro
- Paskirtis: gyvenamoji
- Energetinė klasė: A++
- Statybos pabaiga: iki 2026 m. spalio 1 d.
- Fasadas: pilnai išbaigtas pagal architektūrinį projektą
-Langai: aukštos kokybės medžio ir aliuminio kompozito, pagal projektą
- Terasa: įrengiama pagal projektą
- Stoginė: vieta 2 automobiliams
⚙️ Techninė informacija
- Įrengta grindinė šildymo sistema
- Šildymo sistema – oras–vanduo
- Įrengti visų komunikacijų įvadai
- Grindys išbetonuotos
- Vidaus pertvaros įrengiamos pagal pirkėjo individualų projektą
- Komunikacijos: vietiniai nuotekų valymo įrenginiai
- Vanduo – iš gręžinio
💰 Pardavimo sąlygos
- Pasirašoma nekilnojamojo daikto rezervavimo sutartis
- Galimybė mokėti dalimis, pagal statybų etapus, iki statybos darbų pabaigos
🌿 Privalumai
Vaizdinga vietovė su ežero pakrante
Sutvarkytas gerbuvis, aptverta teritorija
Modernus A++ klasės namas su efektyvia šildymo sistema
Galimybė pritaikyti vidaus planą pagal savo poreikius
Patogus apmokėjimo grafikas – mokėjimai etapais iki statybų pabaigos
Nuotraukos
