Įsiminti
Butas pardavimui, Panevėžys, Kniaudiškiai, Kniaudiškių g. id:1033306 1 kmb.
46 800 €
1 300 €/m²
REKLAMA
Įmoka
176 €/mėn
Paskola 39 780 €
Palūkanos 3.40%
Trukmė 30 metų
Įsiminė
0
Parodymai
Šiandien: 296
Viso: 2590
Peržiūros
Šiandien: 29
Viso: 156
Objekto informacija
Apsauga
Aprašymas
Parduodamas 1 kambario su balkonu ir rūsiu butas Kniaudiškių gatvėje. Butas tvarkingas, patogaus išplanavimo. Buto langai - plastikiniai, į rytų pusę.
• Bendra informacija
Adresas - Kniaudiškių g. 75
Bendras plotas – 36,06 m2
Aukštas - 4/5
Kambarių skaičius - 1
Namo tipas – blokinis
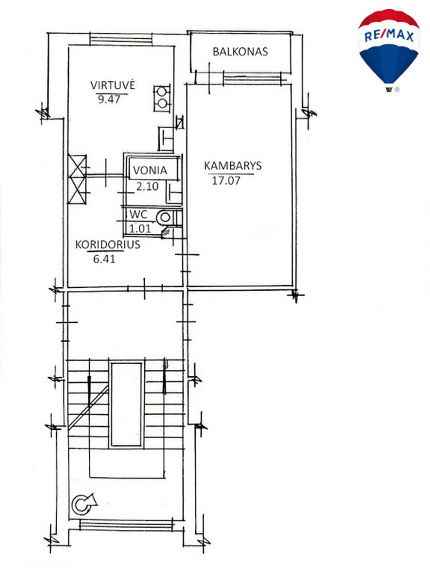
• Bute yra vienas kambarys (17,07 m2). Virtuvės plotas – 9,47 m2. Erdvus koridorius – 6,41 m2. Vonios kambarys ir wc – atskirai. Balkonas – įstiklintas. Šarvo durys.
• Šildymo tipas
Centrinis. Mažos išlaidos šildymui : 2024 m. gruodžio mėn. – 0,90 EUR/m2, 2025 m. sausio mėn. – 0,97 EUR/m2, vasario mėn. – 1,31 EUR/m2.
• Bendra informacija
Adresas - Kniaudiškių g. 75
Bendras plotas – 36,06 m2
Aukštas - 4/5
Kambarių skaičius - 1
Namo tipas – blokinis
• Bute yra vienas kambarys (17,07 m2). Virtuvės plotas – 9,47 m2. Erdvus koridorius – 6,41 m2. Vonios kambarys ir wc – atskirai. Balkonas – įstiklintas. Šarvo durys.
• Šildymo tipas
Centrinis. Mažos išlaidos šildymui : 2024 m. gruodžio mėn. – 0,90 EUR/m2, 2025 m. sausio mėn. – 0,97 EUR/m2, vasario mėn. – 1,31 EUR/m2.
Nuotraukos
